GOGOGO免费完整国语版_gogogo高清在线观看_GOGOGO高清在线播放免费观看_GOGOGO高清在线播放免费观看如果奔跑是湘_GOGOGO免费完整国语_GOGOGO免费国语完整版_gogogo在线高清免费完整版_gogogo手机高清在线观看_gogogo高清完整版_GOGOGO高清在线完整版_GOGOGO在线高清免费完整板_GOGOGO免费高清完整版

宿遷雙全投資有限公司
English

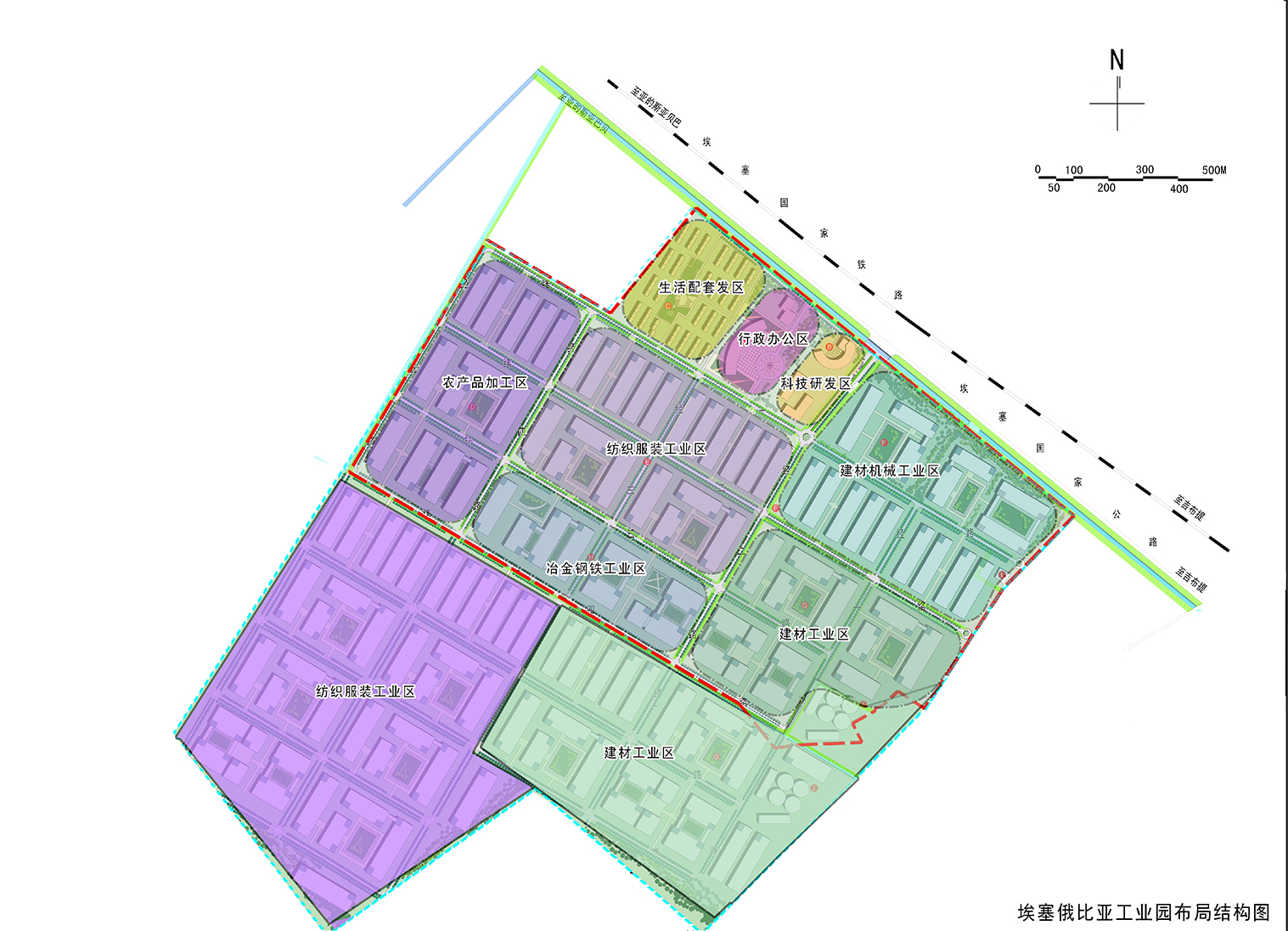
工(gōng)業(yè)園規劃 工(gōng)業(yè)園占地(d÷→ì)5平方公裡(lǐ),采取“總體(tǐ)規劃、分(fēn)期實施;建設與招商同步、開 ✘÷<(kāi)發與使用(yòng)同步;以園養園、滾動式發展”的(de)市(shì)場(c★>£♠hǎng)化(huà)運作(zuò)模式,規劃形成居住用(yòng)地(dì)、∑÷δ商貿用(yòng)地(dì)、工(gōng)業(yè)倉儲✔↑₽✘用(yòng)地(dì)、道(dào)路(l☆$'ù)用(yòng)地(dì)、市(shì)政公用(yòng)設施用(yòng)地(d∏§αì)、綠(lǜ)化(huà)用(yòng)地(dì)等六大(dà)類規劃布局☆α。

GOGOGO免费完整国语版_gogogo高清在线观看_GOGOGO高清在线播放免费观看_GOGOGO高清在线播放免费观看如果奔跑是湘_GOGOGO免费完整国语_GOGOGO免费国语完整版_gogogo在线高清免费完整版_gogogo手机高清在线观看_gogogo高清完整版_GOGOGO高清在线完整版_GOGOGO在线高清免费完整板_GOGOGO免费高清完整版